€
EUR
£
GBP
$
USD
R$
BRL
PROPERTIES
WHO ARE WE
BLOG
CONTACTS
More
PROPERTIES
WHO ARE WE
BLOG
CONTACTS
0
0
€
EUR
£
GBP
$
USD
R$
BRL
2 bedroom apartment in luxury condominium with pool, Lagos
Lagos, Ameijeira
back
\
2 bedroom apartment in luxury condominium with pool, Lagos - Lagos, Ameijeira
Share Property
Facebook
X
Pinterest
WhatsApp
Copy link
Link copiado
Print sheet
Send property to a friend
Insert a name
Insert an email
Please enter a valid email address
Insert a name
Insert an email
Please enter a valid email address
I have read and agree to the terms and conditions set forth.
Know more »
To finish this operation you should read and agree with our conditions.
Required fields *
Send
Photos
Seguir imóvel
Seguir imóvel
Receba um alerta quando existir uma Baixa de Preço
Name
Enter your name
Email
Enter your email
Please enter a valid email address
Li e aceito a
Privacy Policy
To finish this operation you should read and agree with our conditions.
Insert the code from the image
Code
Send
2 bedroom apartment in luxury condominium with pool, Lagos
560.000 €
Ref:
VA894
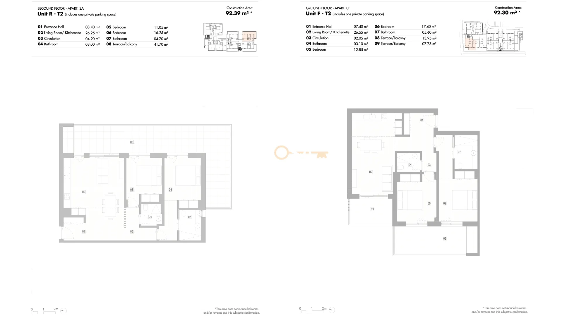
2
2
1
92 m²
134 m²
Two unique and exclusive developments
, comprising a total of 65 apartments with contemporary architecture and premium finishes. Each space has been designed to offer comfort, elegance, and functionality, creating a concept of modern and inspiring living. Completion scheduled for December 2028.
Features
2 bedroom apartment with open-plan design
Master suite with walk-in closet and private bathroom
Fully equipped premium kitchen
Air conditioning, underfloor heating, and electric shutters
Smart Home system with digital and smartphone control
Solar panels, heat pump, and high energy efficiency standards
Luxury finishes: porcelain stoneware, lacquered wood, and double-glazed windows
Private parking with pre-installation for electric vehicle charging
Gated condominium with swimming pool, gym, and landscaped areas
Surroundings
Located just 5 minutes from Porto de Mós Beach and close to Lagos’ historic center
Proximity to restaurants, shops, golf courses, and marinas ensures a vibrant and comfortable year-round lifestyle
Highlights
Contemporary design and top-quality finishes
Technology and efficiency serving comfort
Premium location by the sea
Privacy, security, and well-being in an exclusive environment
Energy rating: A
Prices from €560,000 to €610,000
A rare opportunity in Lagos, is a modern, sophisticated, and inspiring living experience where comfort, elegance, and well-being meet in perfect harmony.
Property type
Apartment
Typology
2 Bedrooms
Objective
Sale
Condition
Under Construction
Price
560.000 €
Year of Construction
2028
Country
Portugal
District
Faro
Town
Lagos
Parish
Lagos (São Sebastião e Santa Maria)
Zone
Ameijeira
Erik Heijselaar
+351 912 547 448
Chamada para a rede móvel nacional
I want to be contacted
Date
Time
Name
Insert a name
Email
Insert an email
Please enter a valid email address
Contact
Enter your phone contact
Message
Request more information, without any commitment about the property VA894
I have read and agree to the terms and conditions set forth.
Privacy Policy
To finish this operation you should read and agree with our conditions.
Code
Insert the code shown in the image.
Send
General Characteristics
General
Divisions
Divisions
Area
Floor
Walls
Ceilings
Comments
Environment
Facilities
Domotic System (Home automation)
Renewable Energies
See too
Lagos, Ameijeira
550.000 €
1+1 bedroom apartment in luxury condominium with pool, Lagos
550.000 €
1+1 bedroom apartment in luxury condominium with pool, Lagos
Lagos, Ameijeira
2
2
1
147 m²
A. Bruta
114 m²
A. Useful
Contactar
Lagos, Ameijeira
675.000 €
2+1 bedroom apartment in luxury condominium with pool, Lagos
675.000 €
2+1 bedroom apartment in luxury condominium with pool, Lagos
Lagos, Ameijeira
3
2
1
181 m²
A. Bruta
142 m²
A. Useful
Contactar
Lagos, Ameijeira
800.000 €
1+1 bedroom duplex flat in luxury condominium with pool, Lagos
800.000 €
1+1 bedroom duplex flat in luxury condominium with pool, Lagos
Lagos, Ameijeira
2
2
1
256 m²
A. Bruta
113 m²
A. Useful
Contactar
More properties +
We are available to help you
I want to be contacted
Date
Time
Name
Insert a name
Email
Insert an email
Please enter a valid email address
Contact
Enter the contact number
Message
Li e aceito a
Privacy Policy
To finish this operation you should read and agree with our conditions.
Code
Insert the code shown in the image.
Send
O que é a pesquisa responsável
Esta pesquisa permite obter resultados mais ajustados à sua disponibilidade financeira.